Accueil
Louer un lieu
Proposer un lieu
Services de production
Nos réalisations
Nous
Contact / Devis
Rechercher par mot clef
search
FR
EN
Ma sélection
heart_plus
0
Easy Spaces
Trouver un lieu
Location Lieu Événementiel Marseille (13)
Retour
Location Lieu Événementiel Marseille (13)
Référence :
ABEILLE
Ville :
marseille
Ajouter à ma selection
share_windows
Partager
image_search
Voir toutes les photos (12)
Informations
open_in_full
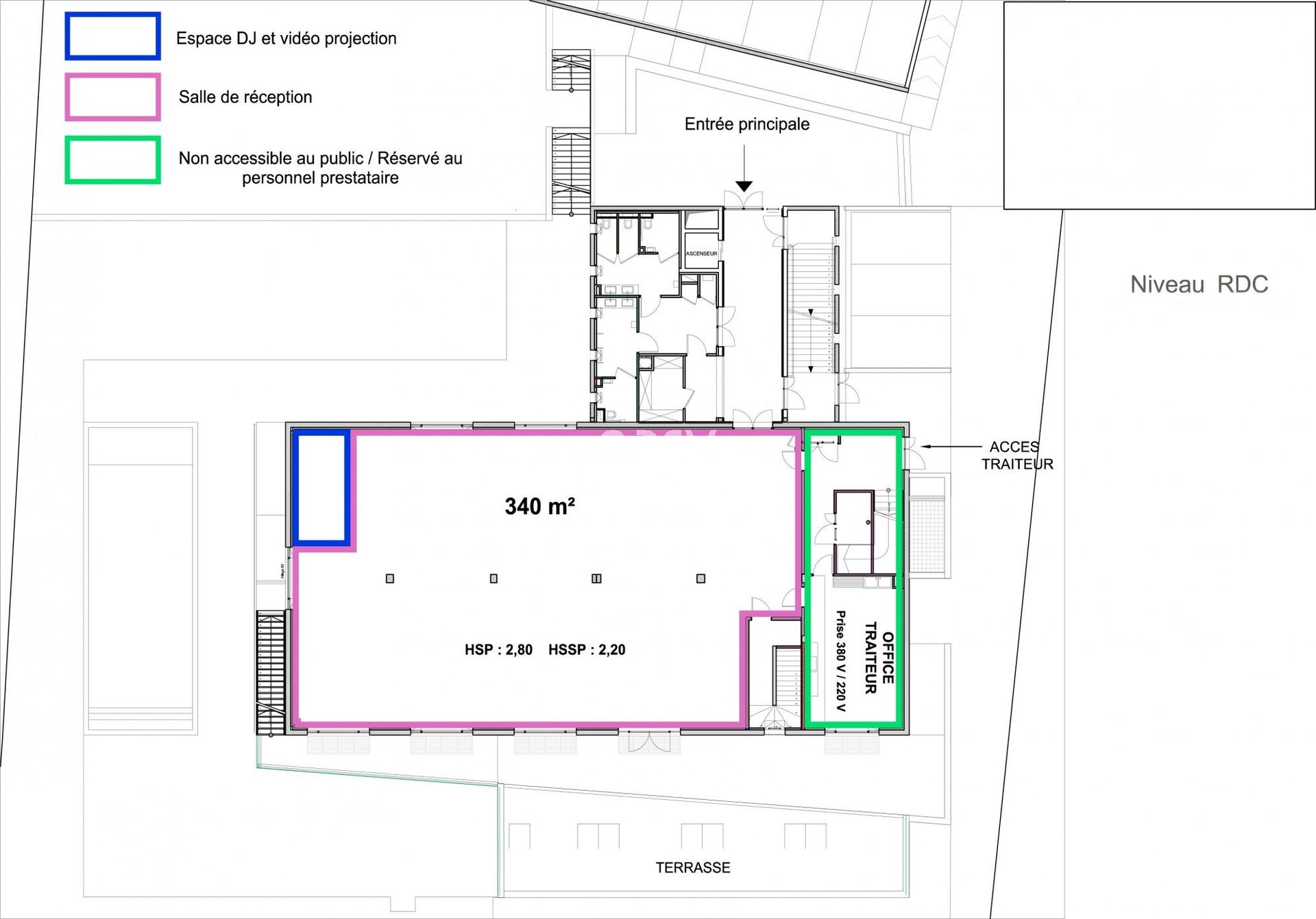
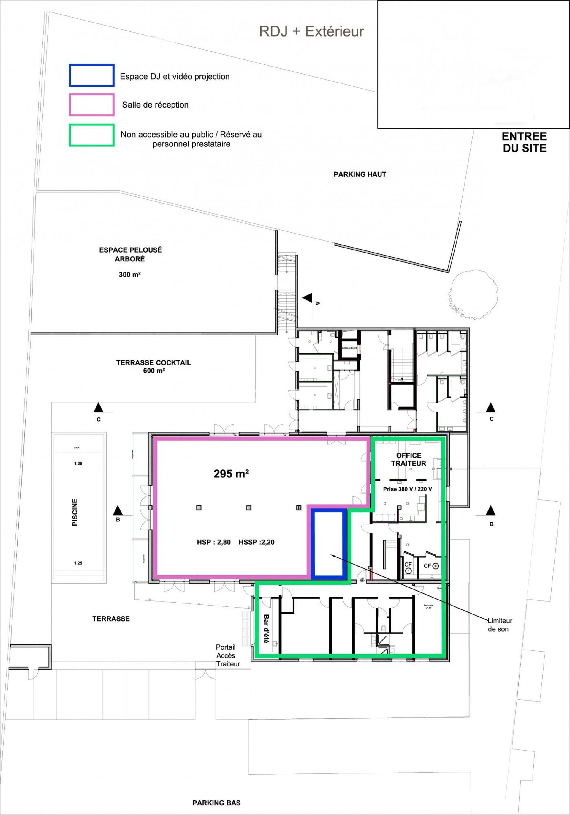
1900m2
airline_seat_recline_extra
290
man
350
settings_accessibility
Accès :
Facile
wifi
Equipement :
Wifi / rooftops 180m2 / 400m2 de terrasse / 250m2 de jardin / piscine : 5m de largeur - 14m de longueur - 1m50 de profondeur / Puissance électrique : 40 KW
local_parking
Parking/Stationnement :
100 places
info
Services :
Traiteur imposé - horaire 8h à 2h maximum
airline_seat_recline_extra
Nb personnes assis :
290
local_bar
Nb personnes cocktail :
350
Description
Contact & Devis
Les champs indiqués par un astérisque (*) sont obligatoires
Nom*
Prénom*
Société*
Adresse
Code postal
Ville*
Téléphone*
Email*
Type de projet ?* :
Photo
Tournage
Évènement
Autres
Budget / jour (minimum 2000€HT)* :
De 2000€ à 2500€
De 2501€ à 4500€
De 4501€ à 6500€
De 6501€ à 15000€
+ de 15000€
Situation géographique recherchée*
Date de début
Date de fin
Bonjour. Je souhaiterais avoir de plus amples informations concernant : Référence : ABEILLE Location Lieu Événementiel Marseille (13). Pourriez-vous me recontacter s'il vous plait ?
Message*
En soumettant ce formulaire, j'accepte que les informations saisies soient traitées par
EASY PRODUCTION
dans le cadre de ma demande de contact et de la relation commerciale qui peut en découler.
En savoir plus en consultant notre politique de confidentialité.
*
Retour
Location Lieu Évenementiel Lyon (69) - Rhône
Location Lieux de Tournage Marseille (13) - Bouches du Rhône
Location Lieu Événementiel : Créez des Moments d 'Exception avec Easy Spaces Côte d 'Azur
mystery
Trouvez un lieu atypique et unique pour vos projets de shooting ou de tournage
receipt_long
Contact / Devis
favorite
0
Favoris
receipt_long
Contact / Devis
call
Appelez-nous
Recherchez une référence
search